ゆとりのある玄関ホールと、くつろぎの応接スペース
お客様のご要望
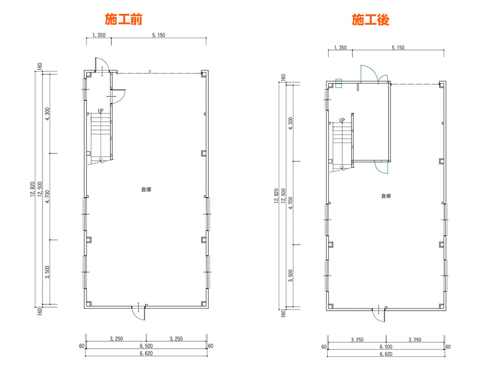
玄関が狭いので、倉庫をうまく活用し広げたい。また、下駄箱を大きくしたい。
現状、居住スペースが2階だが、1階でも話のできる空間がほしい。
リフォーム詳細
リフォームデータ
| リフォーム内容 | 玄関ドアリフォーム、エクステリアリフォーム、内装リフォーム | ||
|---|---|---|---|
| 費用 | 6,400,000円(税込) | 工期 | 約2か月間 |
| 現場名 | 瀬戸市 A様邸 | 担当 | 名古屋守山ショールーム |
| 商品仕様 |
玄関ドア:LIXIL リシェント シャッター:文化シヤッター製品 壁紙:サンゲツ リザーブ |
||
イメージパース

図面


施工前


施工後





お客様の声
話のできるテーブルが置けるほど、1階が広くなって嬉しいです。玄関ドアもタッチキーになり、楽で安心できます。
孫が来た時に喜んでくれてうれしかったです。
担当スタッフより一言
着工前は図面やパースを用いてイメージしていただき、現場が進むにつれ「こうしたい、こうした方がよい」と生まれてきた変更点はその都度打合せしながら施工しました。
通り道程度の広さしかなかった玄関を解体し、使用頻度の低い倉庫片側のシャッターは撤去。広々とした玄関・玄関ホールになりました。
靴箱も規格寸法のサイズを入れるには広い間取りと高さでしたので、可動棚を用いて高さを変えられるようにしました。収納した靴が丸見えになるのを防ぐためにロールカーテンを設置し、目隠しにしました。
宅配ボックスも設置しました。前入れ後ろ出しのタイプですので、玄関の外に回ることなく郵便物が取れるのが便利な設備です。
関連するニッカホーム全体の施工事例





















